Appartamento in asta a Firenze in via Ser Monachi

In vendita
Appartamento
Firenze
200.250 €
Descrizione
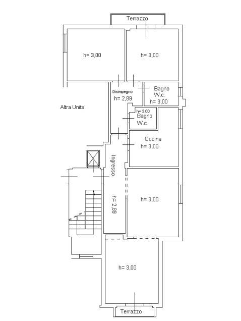
In asta un appartamento al primo piano con annessa cantina e resede esclusivo (corte) al piano terra.
All'appartamento si accede dall’ingresso condominiale posto su Via Ser Ventura Monachi n. 19 dopo aver percorso l’ingresso e le scale che portano al pianerottolo del primo piano.
L’appartamento è composto da un vano ingresso-corridoio che disimpegna i vani della zona giorno e in particolare il salotto e la cucina, e da un secondo corridoio che disimpegna la zona notte composta da servizio igienico, n. 2 camere, ripostiglio/guardaroba.
Il cortile/resede è costituito da un ampio vano posto al piano terra collegato direttamente con scala posta nella cucina. Il ripostiglio/cantina è annesso al resede e vi si accede tramite passaggio munito di porta di ingresso.
L’unità immobiliare ha una superficie ndi circa mq 97,00. Vanno sommate le superfici ragguagliate del cortile/resede pari a mq 40,00 e del ripostiglio/cantina pari a mq 11,00.
L'immobile nel suo complesso necessita di qualche ammodernamento, è munito di impianto di riscaldamento termo singolo e l'intero stabile si presenta in buono stato manutentivo.

Stai cercando opportunità immobiliari a prezzi imbattibili? Le aste giudiziarie potrebbero essere la risposta che stai cercando, possono sembrare complesse e intimidatorie, noi siamo qui per semplificare il processo.
Offriamo consulenze personalizzate, analisi di mercato e supporto dedicato per aiutarti a trovare le migliori occasioni.
I nostri clienti hanno ottenuto risultati straordinari grazie alla nostra assistenza e le testimonianze parlano chiaro: con noi, ogni passo è sicuro e trasparente.
La tua soddisfazione è la nostra priorità, e i successi dei nostri clienti sono la migliore prova del nostro impegno.
Non perdere tempo contattaci oggi per una consulenza gratuita e scopri come realizzare il tuo sogno immobiliare!
Caratteristiche principali
Codice:
260317FI 354
Città:
Firenze
Categoria:
Appartamento
Locali:
5,5
Camere:
3
Bagni:
1
Mq:
97
Mq Giardino:
40
Classe energetica:
G
Mappa
Via VENTURA SER MONACHI, 19 - Firenze (FI)
Video
Cookie preference