In asta un complesso immobiliare a Firenze Sud

In vendita
Rustico/Casale
Bagno a Ripoli
304.500 €
Descrizione
In vendita a mezzo asta la piena proprietà di un complesso immobiliare, composto da:
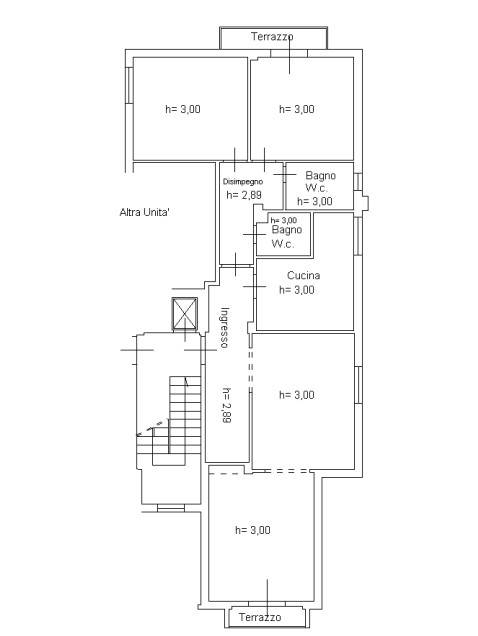
- un fabbricato ad uso residenziale di circa 128 mq,
- un fabbricato ad uso non residenziale e da
- terreni circostanti detti fabbricati, posti in pendenza e incolti coperti di
vegetazione a medio e alto fusto, che necessitano di manutenzione straordinaria.
I beni si trovano in stato di abbandono.
Trattasi sostanzialmente di un rudere che presenta lesioni e crolli di ampie porzioni ma che tuttavia riveste un valore storico .

Stai cercando opportunità immobiliari a prezzi imbattibili? Le aste giudiziarie potrebbero essere la risposta che stai cercando, possono sembrare complesse e intimidatorie, noi siamo qui per semplificare il processo.
Offriamo consulenze personalizzate, analisi di mercato e supporto dedicato per aiutarti a trovare le migliori occasioni.
I nostri clienti hanno ottenuto risultati straordinari grazie alla nostra assistenza e le testimonianze parlano chiaro: con noi, ogni passo è sicuro e trasparente.
La tua soddisfazione è la nostra priorità, e i successi dei nostri clienti sono la migliore prova del nostro impegno.
Non perdere tempo contattaci oggi per una consulenza gratuita e scopri come realizzare il tuo sogno immobiliare!
Caratteristiche principali
Codice:
260303FI 352
Città:
Bagno a Ripoli
Categoria:
Rustico/Casale
Locali:
5
Bagni:
1
Mq:
128
Classe energetica:
G
Stato Immobile:
Da Ristrutturare
Video
Planimetrie
Cookie preference