In asta due prestigiosi edifici residenziali

In vendita
Casa singola
Firenze
1.470.000 €
Descrizione
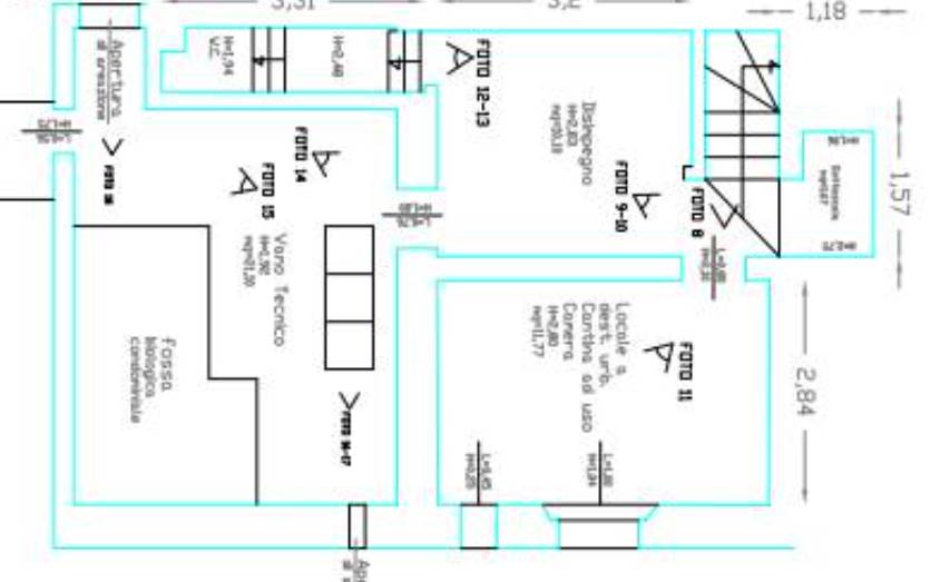
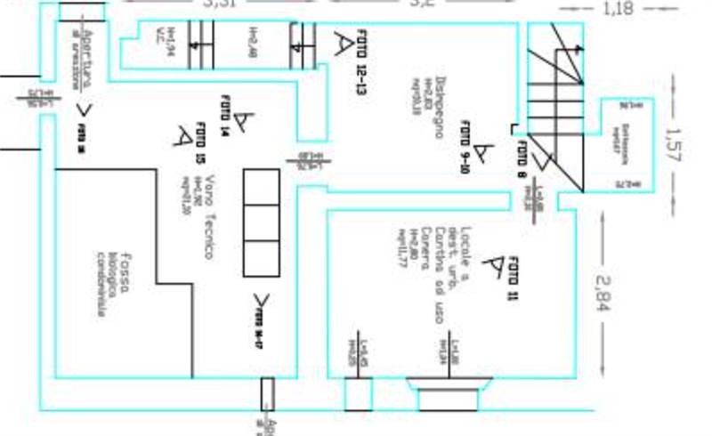
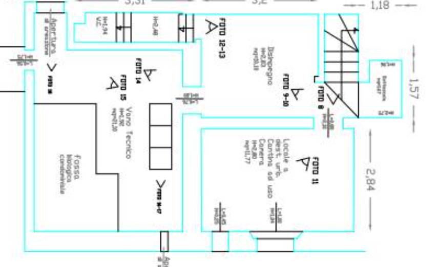
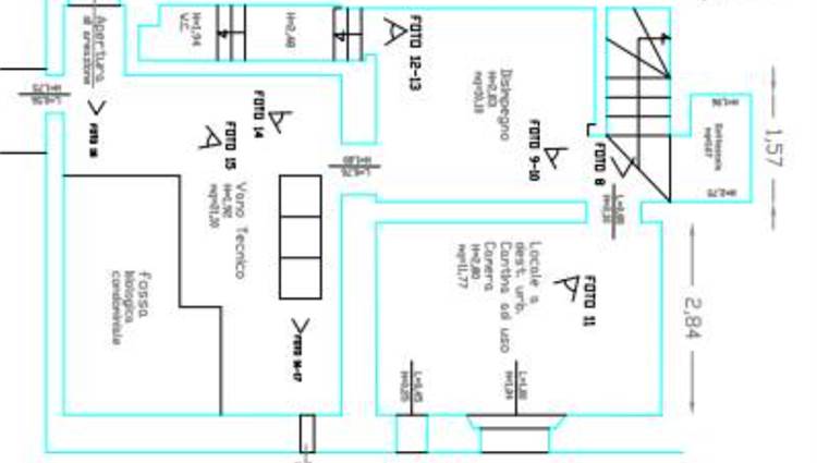
In vendita tramite asta competitiva la piena proprietà di due edifici unifamiliari di vecchia foggia a destinazione civile abitazione della superficie commerciale rispettivamente di 225,00 mq e 108,00 mq e da una autorimessa della superficie commerciale di circa 31,00 mq.
I fabbricati residenziali sono circondati da ampi terreni della superficie catastale di circa 2.600 mq.

Stai cercando opportunità immobiliari a prezzi imbattibili? Le aste giudiziarie potrebbero essere la risposta che stai cercando, possono sembrare complesse e intimidatorie, noi siamo qui per semplificare il processo.
Offriamo consulenze personalizzate, analisi di mercato e supporto dedicato per aiutarti a trovare le migliori occasioni.
I nostri clienti hanno ottenuto risultati straordinari grazie alla nostra assistenza e le testimonianze parlano chiaro: con noi, ogni passo è sicuro e trasparente.
La tua soddisfazione è la nostra priorità, e i successi dei nostri clienti sono la migliore prova del nostro impegno.
Non perdere tempo contattaci oggi per una consulenza gratuita e scopri come realizzare il tuo sogno immobiliare!
Caratteristiche principali
Codice:
260206FI 315
Città:
Firenze
Categoria:
Casa singola
Locali:
18
Camere:
7
Bagni:
5
Mq:
339
Mq Giardino:
345
Terrazzi:
2
Piano:
Terra
Classe energetica:
G
Stato Immobile:
Ottimo
Grado:
Signorile
Mappa
Via Ippolito Pindemonte - Firenze (FI)
Video
Cookie preference