Casa in asta a Pontassieve

In vendita
Appartamento
Pontassieve
291.000 €
Descrizione
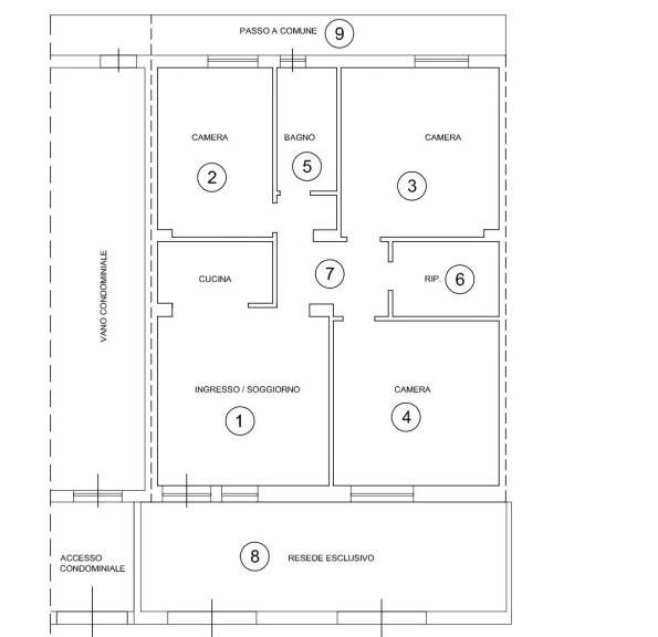
In asta una casa ex colonica in campagna nel comune di Pontassieve costituita da due distinte unità abitative , ubicata in località Tigliano Casalta, così composta:

a) appartamento al primo piano composto da tre vani oltre cucina, bagno, disimpegno e vano di accesso;
b) appartamento per civile abitazione posto al piano terreno con annesso resede esclusivo pertinenziale circostante l'immobile e composto da tre vani, cucina, bagno, ripostiglio e corridoio oltre a 4 vani ripostiglio-cantina posti al piano interrato;
c) Piena di proprietà di appezzamenti di terreno limitrofi agli appartamenti sub a e b, situati nel Comune di Pontassieve per un totale di mq. 7.990.

Stai cercando opportunità immobiliari a prezzi imbattibili? Le aste giudiziarie potrebbero essere la risposta che stai cercando, possono sembrare complesse e intimidatorie, noi siamo qui per semplificare il processo.
Offriamo consulenze personalizzate, analisi di mercato e supporto dedicato per aiutarti a trovare le migliori occasioni.
I nostri clienti hanno ottenuto risultati straordinari grazie alla nostra assistenza e le testimonianze parlano chiaro: con noi, ogni passo è sicuro e trasparente.
La tua soddisfazione è la nostra priorità, e i successi dei nostri clienti sono la migliore prova del nostro impegno.
Non perdere tempo contattaci oggi per una consulenza gratuita e scopri come realizzare il tuo sogno immobiliare!
Caratteristiche principali
Codice:
260113FI 281
Città:
Pontassieve
Categoria:
Appartamento
Locali:
12
Camere:
5
Bagni:
4
Mq:
240
Mq Giardino:
500
Classe energetica:
G
Mappa
Via di Tigliano - Pontassieve (FI)
Video
Cookie preference