Appartamento in asta a Fucecchio

In vendita
Appartamento
Fucecchio
11.705 €
Descrizione
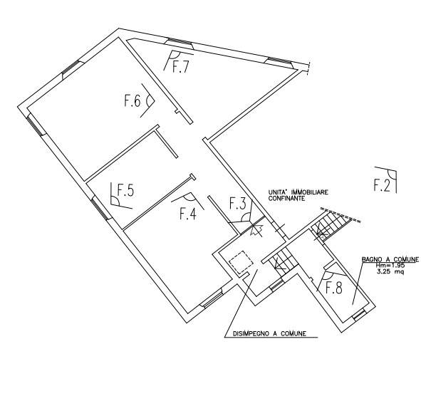
Appartamento facente parte di un più ampio fabbricato situato al terzo piano e composto da:
- ingresso/disimpegno, cucina, tre locali e servizio igienico esterno all'appartamento, posto sul pianerottolo condominiale, a comune fra l'appartamento in oggetto e quello attiguo.
L’ appartamento si presenta in pessimo stato di conservazione con totale assenza di impianti (termico, elettrico, ecc..) e rifiniture di qualunque genere.

Stai cercando opportunità immobiliari a prezzi imbattibili? Le aste giudiziarie potrebbero essere la risposta che stai cercando, possono sembrare complesse e intimidatorie, noi siamo qui per semplificare il processo.
Offriamo consulenze personalizzate, analisi di mercato e supporto dedicato per aiutarti a trovare le migliori occasioni.
I nostri clienti hanno ottenuto risultati straordinari grazie alla nostra assistenza e le testimonianze parlano chiaro: con noi, ogni passo è sicuro e trasparente.
La tua soddisfazione è la nostra priorità, e i successi dei nostri clienti sono la migliore prova del nostro impegno.
Non perdere tempo contattaci oggi per una consulenza gratuita e scopri come realizzare il tuo sogno immobiliare!
Caratteristiche principali
Codice:
252011FI 268
Città:
Fucecchio
Categoria:
Appartamento
Locali:
4
Mq:
81
Classe energetica:
G
Mappa
Via Fratelli Cairoli, 6 - Fucecchio (FI)
Video
Planimetrie
Cookie preference