In asta a Campi Bisenzio (FI)

In vendita
Appartamento
Campi Bisenzio
138.750 €
Descrizione
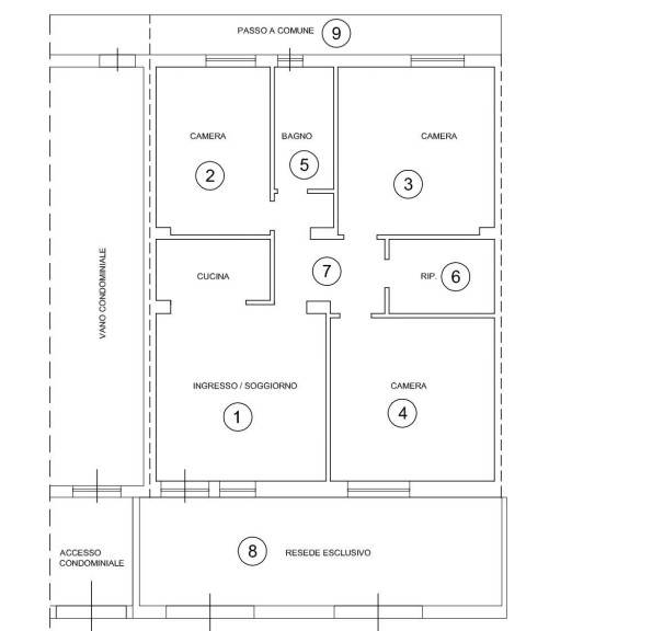
In asta la piena proprietà di un appartamento per civile abitazione con accesso da cancelletto prospiciente sulla via Tevere e dal lato interno.
L’appartamento è costituito da:
- ingresso/soggiorno, angolo cottura, bagno, tre camere,ripostiglio/lavanderia, e due resedi esterni , di cui uno gravato di servitu' di passo .

Realizzato negli anni 60 , risulta ben disposto per isposizione ed illuminazione dei vani , e si trova in buono stato manutentivo , dotato di impianto di riscaldamento autonomo.

Stai cercando opportunità immobiliari a prezzi imbattibili? Le aste giudiziarie potrebbero essere la risposta che stai cercando, possono sembrare complesse e intimidatorie, noi siamo qui per semplificare il processo.
Offriamo consulenze personalizzate, analisi di mercato e supporto dedicato per aiutarti a trovare le migliori occasioni.
I nostri clienti hanno ottenuto risultati straordinari grazie alla nostra assistenza e le testimonianze parlano chiaro: con noi, ogni passo è sicuro e trasparente.
La tua soddisfazione è la nostra priorità, e i successi dei nostri clienti sono la migliore prova del nostro impegno.
Non perdere tempo contattaci oggi per una consulenza gratuita e scopri come realizzare il tuo sogno immobiliare!
Caratteristiche principali
Codice:
251216FI 269
Città:
Campi Bisenzio
Categoria:
Appartamento
Locali:
5,5
Camere:
2
Bagni:
1
Mq:
101
Mq Giardino:
32
Piano:
Terra
Classe energetica:
G
Stato Immobile:
Buono
Grado:
Medio
Mappa
Via Tevere, 27 - Campi Bisenzio (FI)
Video
Cookie preference