Appartamento in asta a Londa

In vendita
Appartamento
Londa
21.206 €
Descrizione
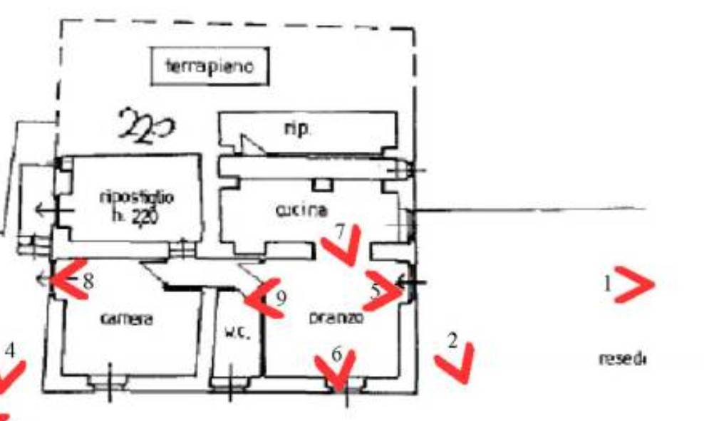
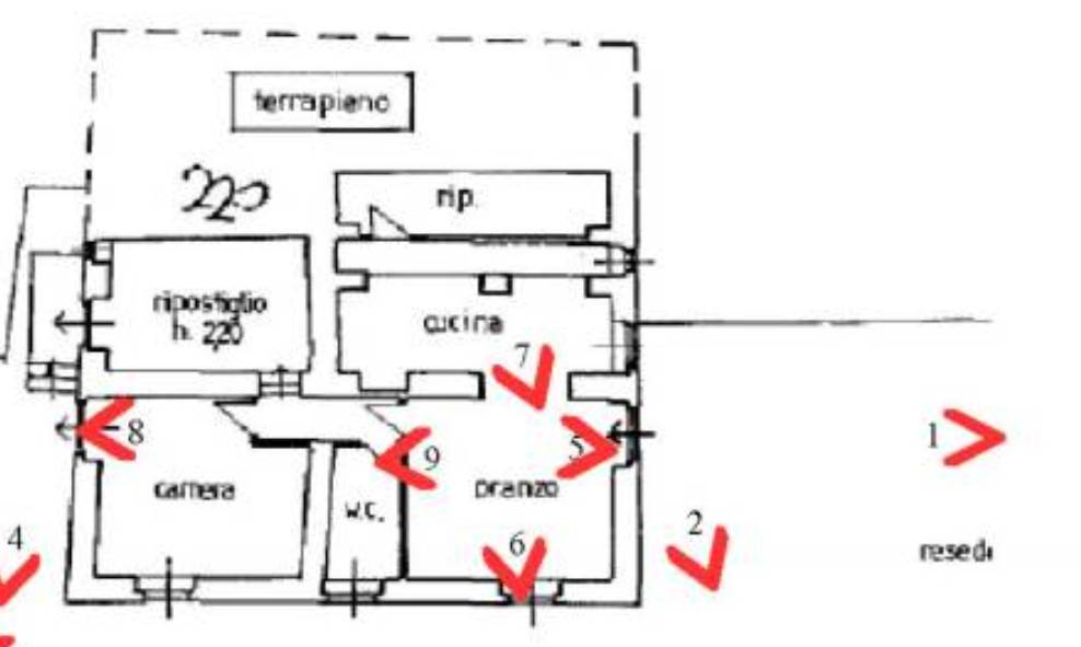
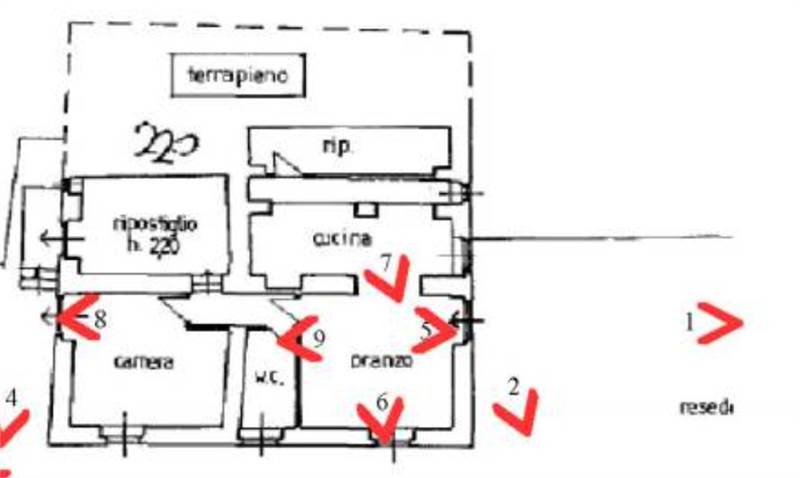
Immerso in una delle campagne più belle della Toscana, nei dintorni di Firenze , è n asta la piena proprietà di un appartamento situato al piano 1° ed ultimo, di mq. 66,00 circa (sup. lorda) di una casa di remota costruzione e realizzata in muratura e pietra.
L'unità abitativa si presenta al grezzo con lavorazioni da completare, idonea per essere rifinita e con impianti da realizzare a proprio piacimento.
L’appartamento è composto da vano cucina soggiorno, due camere, bagno, disimpegno e da un resede esclusivo di circa 145,00 mq.


Stai cercando opportunità immobiliari a prezzi imbattibili? Le aste giudiziarie potrebbero essere la risposta che stai cercando, possono sembrare complesse e intimidatorie, noi siamo qui per semplificare il processo.
Offriamo consulenze personalizzate, analisi di mercato e supporto dedicato per aiutarti a trovare le migliori occasioni.
I nostri clienti hanno ottenuto risultati straordinari grazie alla nostra assistenza e le testimonianze parlano chiaro: con noi, ogni passo è sicuro e trasparente.
La tua soddisfazione è la nostra priorità, e i successi dei nostri clienti sono la migliore prova del nostro impegno.
Non perdere tempo contattaci oggi per una consulenza gratuita e scopri come realizzare il tuo sogno immobiliare!
Caratteristiche principali
Codice:
260212FI 316
Città:
Londa
Categoria:
Appartamento
Locali:
3
Camere:
2
Bagni:
1
Mq:
66
Mq Giardino:
145
Classe energetica:
G
Stato Immobile:
Buono
Grado:
Medio
Posizione:
Montagna
Mappa
Localita' Bucigna, snc - Londa (FI)
Video
Cookie preference